move

Schedule of Areas

Floor
Office NIA
(SQ FT)
Office
Terrace
Amenity
Amenity SQ FT
Sixth
5,353
2,586
The Green Room
702
Communal terrace
1,159
Second
16,046
226
First
16,324
248
Reception & breakout area
2,334
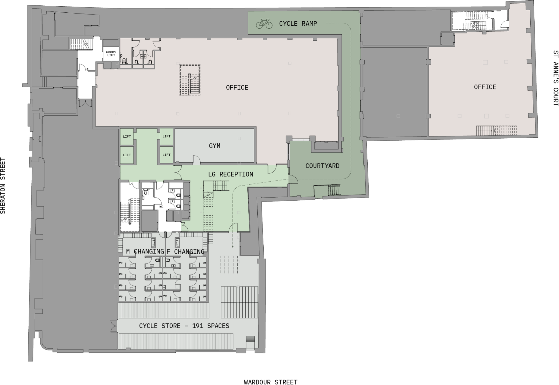
Lower
ground
6,129
End-of-trip & LG reception
4,271
Total
96,873
3,060
6,132
Oval Copy
  • Lower Ground

    6,129 SQ FT

    AMENITY
    4,271 SQ FT

    lower-ground
  • Reception & breakout area

    2,334 SQ FT

    ground-floor
  • Ground floor

    8,397 SQ FT

    ground-floor
  • First floor

    16,324 SQ FT

    TERRACE
    248 SQ FT

    floorplan-4
  • Second floor

    16,046 SQ FT

    TERRACE
    226 SQ FT

    second-floor
  • Third floor

    15,533 SQ FT

    third-floor
  • Fourth floor

    14,168 SQ FT

    fourth-floor
  • Fifth floor

    12,589 SQ FT

    fifth-floor
  • Sixth floor

    5,353 SQ FT

    COMMUNAL TERRACE
    1,159 SQ FT

    GREEN ROOM
    702 SQ FT

    sixth-floor
Oval
Contact Form
Contact Form
Contact Form
Contact Form
No Fields Found.
Contact Form
Contact Form
Contact Form